Baikonur, Almaty, Kasachstan
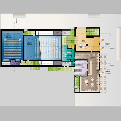
Ein historisches Kino-Gebäude mitten in Almaty, benannt nach der russisch-kasachischen Raketenabschussstation Baikonur, soll wiederbelebt werden. Außer dem Umbau zu mehreren Kinosälen soll sich das Weltraumthema in der Gestaltung wiederfinden: Säle wie auf anderen Planeten, Raumfahrzeuge und Astronauten an Fassaden, als Wandgestaltung oder als Lichtobjekte schaffen ein außerirdisches Raumerlebnis.






